6階は現在募集がありません
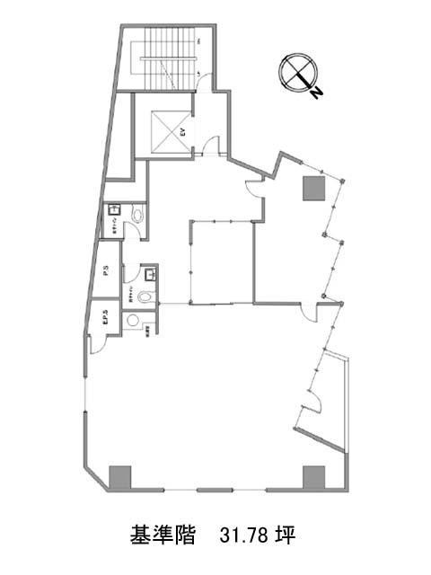
ルート神南ビル 6階
物件概要
ルート神南ビルのテナント募集中区画
現在、空室がございません。
アクセス
ルート神南ビルの物件情報
ルート神南ビル(渋谷区神南)は渋谷駅(B1番出口)から徒歩9分の賃貸オフィスです。ルート神南ビルは渋谷駅(B1番出口)の他に明治神宮前駅(1番出口)徒歩9分、原宿駅(西口)徒歩9分で利用も可能です。

