3階は現在募集がありません
1フロア募集区画あり

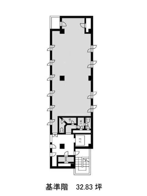
丸栄ビル 3階

前の写真 次の写真

物件概要

物件番号

173-00004-90

物件名

丸栄ビル

所在地

面積

32.83坪

賃料(共益費含)


入居日

募集終了

保証金

礼金

更新料

償却費

竣工

1988年9月

構造

S造

規模

地上7階

トイレ

男女別

空調

個別空調

エレベーター

セキュリティ

駐車場

耐震

新耐震基準

基準階天井高

空室延床面積

32.83坪

最寄駅

情報更新日

2026/02/05

丸栄ビルのテナント募集中区画

階数 面積 賃料(共益費含む) 保証金 入居可能日 検討リスト 詳細
4 32.83坪 726,000円/月(22,114円/坪) 500万円
…新着物件

丸栄ビルのアクセス

丸栄ビルの物件情報

丸栄ビル(渋谷区神南)は渋谷駅(B1番出口)から徒歩6分の賃貸オフィスです。
丸栄ビルは渋谷駅(B1番出口)の他に明治神宮前駅(1番出口)徒歩8分、原宿駅(西口)徒歩9分で利用も可能です。

近隣のエリア・駅から探す