JP-BASE渋谷のテナント募集中区画
| 階数 | 面積 | 賃料(共益費含む) | 保証金 | 入居可能日 | 検討リスト | 詳細 |
|---|---|---|---|---|---|---|
| 7-8F | 40.25坪 | 1,726,725円/月(42,900円/坪) | 470万円 | 2026年7月上旬 | ||
| 4 | 28.00坪 | 1,108,800円/月(39,600円/坪) | 302万円 | 2026年3月下旬 | ||
| 5 | 27.78坪 | 1,113,948円/月(40,099円/坪) | 303万円 | 即 |
…新着物件
JP-BASE渋谷のアクセス
JP-BASE渋谷の物件情報
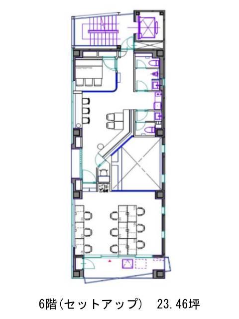
JP-BASE渋谷(渋谷区東)は恵比寿駅(2番出口)から徒歩9分の賃貸オフィスです。明治通り沿いに建つ、8階建てのビルです。ガラスカーテンウォールを使ったデザイン性の高い外観で、1階にはコンビニが入っています。南側が路地になっているので、解放感があります。間取りは28.6から30.52坪と部屋によって若干異なりますが、いずれも長方形の形をしています。室内に給湯室とトイレが設置されています。1階はスケルトン仕様になっているのでトイレの設置はございません。渋谷区東は東側は高級住宅街として有名な広尾、南側は恵比寿に隣接しています。当物件は渋谷駅と恵比寿駅の丁度中間ぐらいに位置しています。明治通りを挟んで西側に、都営渋谷東二丁目第2アパートがあります。ここは都営バスの渋谷車庫の上に都営アパートが建っている変わった造りになっています。1969年に建設された古いアパートながら、立地の良さで未だに人気が高いそうです。JP-BASE渋谷は恵比寿駅(2番出口)の他に渋谷駅(新南口)徒歩10分、代官山駅(北口)徒歩12分で利用も可能です。

