3階は現在募集がありません
エフ・ニッセイ恵比寿ビル 3階
物件概要
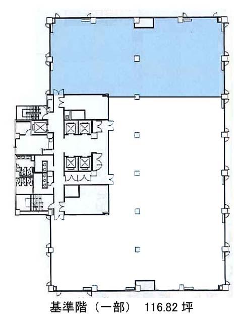
エフ・ニッセイ恵比寿ビルのテナント募集中区画
現在、空室がございません。
アクセス
エフ・ニッセイ恵比寿ビルの物件情報
エフ・ニッセイ恵比寿ビル(渋谷区東)は恵比寿駅(2番出口)から徒歩5分の賃貸オフィスです。エフ・ニッセイ恵比寿ビルは恵比寿駅(2番出口)の他に代官山駅(東口)徒歩10分、渋谷駅(新南口)徒歩13分で利用も可能です。

