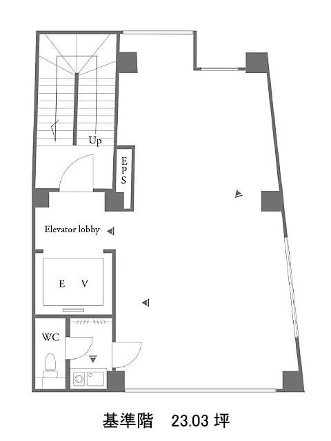
渋谷東KMビルのテナント募集中区画
| 階数 | 面積 | 賃料(共益費含む) | 保証金 | 入居可能日 | 検討リスト | 詳細 |
|---|---|---|---|---|---|---|
| 8 | 23.03坪 | 478,500円/月(20,777円/坪) | 182万円 | 2026年7月上旬 |
…新着物件
渋谷東KMビルのアクセス
渋谷東KMビルの物件情報
渋谷東KMビル(渋谷区東)は渋谷駅(新南口)から徒歩6分の賃貸オフィスです。渋谷東KMビルは渋谷駅(新南口)の他に恵比寿駅(2番出口)徒歩12分、代官山駅(北口)徒歩13分で利用も可能です。

