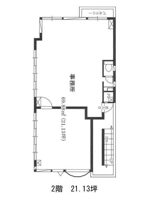
渋谷高橋ビル 2階
物件概要
渋谷高橋ビルのテナント募集中区画
| 階数 | 面積 | 賃料(共益費含む) | 保証金 | 入居可能日 | 検討リスト | 詳細 |
|---|---|---|---|---|---|---|
| 2 | 21.13坪 | 330,000円/月(15,617円/坪) | 90万円 | 相談 |
…新着物件
渋谷高橋ビルのアクセス
渋谷高橋ビルの物件情報
渋谷高橋ビル(渋谷区東)は渋谷駅(C1番出口)から徒歩9分の賃貸オフィスです。渋谷高橋ビルは渋谷駅(C1番出口)の他に表参道駅(B1番出口)徒歩14分で利用も可能です。

