渋谷松永ビルのテナント募集中区画
| 階数 | 面積 | 賃料(共益費含む) | 保証金 | 入居可能日 | 検討リスト | 詳細 |
|---|---|---|---|---|---|---|
| 3 | 61.53坪 | 1,353,660円/月(22,000円/坪) | 812万円 | 即 |
…新着物件
渋谷松永ビルのアクセス
渋谷松永ビルの物件情報
渋谷松永ビル(渋谷区東)は渋谷駅(C1番出口)から徒歩7分の賃貸オフィスです。当ビルは1991年竣工、RC構造・地上3階建てで、新耐震基準に対応した堅実な構造。外観はコンクリート打ちっぱなしを活かしたデザイナーズテイストで、洗練された印象を与えながらも落ち着きのある佇まいです。
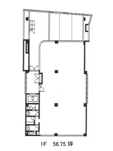
貸室は1フロア1テナント構成で、室内は長方形の整形区画。男女別トイレ・給湯室を室内に備えているため、専有性と実用性を兼ね備えた快適な業務環境を実現します。OAフロア・個別空調・光回線も完備されており、日々の業務を支える機能も充実しています。
低層建てでありながら、しっかりエレベーターも完備されています。各階エレベーターホールを経由する導線設計により、来客対応や社内プライバシーへの配慮もしやすい構造です。加えて、機械警備・オートロックを導入したセキュリティ体制で、24時間利用にも対応しています。渋谷松永ビルは渋谷駅(C1番出口)の他に表参道駅(B1番出口)徒歩13分で利用も可能です。

