9階は現在募集がありません
ビジネスヴィップ渋谷・道玄坂坂本ビル 9階
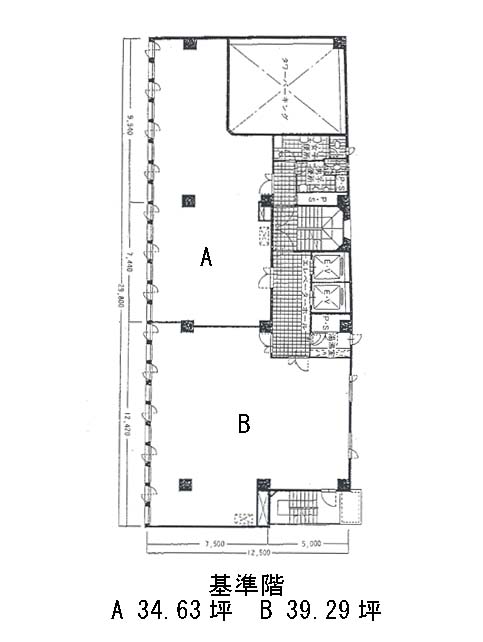
物件概要
ビジネスヴィップ渋谷・道玄坂坂本ビルのテナント募集中区画
現在、空室がございません。
アクセス
ビジネスヴィップ渋谷・道玄坂坂本ビルの物件情報
ビジネスヴィップ渋谷・道玄坂坂本ビル(渋谷区道玄坂)は渋谷駅(A0番出口)から徒歩4分の賃貸オフィスです。ビジネスヴィップ渋谷・道玄坂坂本ビルは渋谷駅(A0番出口)の他に神泉駅(北口)徒歩5分で利用も可能です。

