2階は現在募集がありません
寿道玄坂ビル 2階
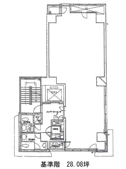
物件概要
寿道玄坂ビルのテナント募集中区画
現在、空室がございません。
アクセス
寿道玄坂ビルの物件情報
寿道玄坂ビル(渋谷区道玄坂)は渋谷駅(西口)から徒歩4分の賃貸オフィスです。寿道玄坂ビルは渋谷駅(西口)の他に神泉駅(北口)徒歩4分で利用も可能です。

