2階 2Bは現在募集がありません
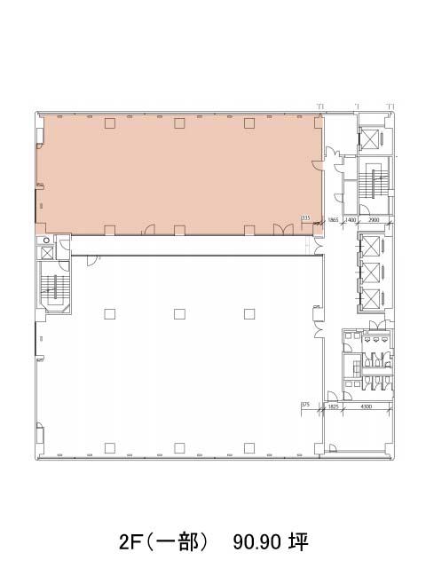
渋谷道玄坂東急ビル 2階 2B
物件概要
渋谷道玄坂東急ビルのテナント募集中区画
現在、空室がございません。
アクセス
渋谷道玄坂東急ビルの物件情報
渋谷道玄坂東急ビル(渋谷区道玄坂)は渋谷駅(アベニュー口)から徒歩3分の賃貸オフィスです。
1983年竣工の新耐震基準を満たす地上11階建てで、基準階約251坪の大型オフィス物件です。外観はグレーの石張りにミラーガラスが帯状に並ぶ硬派な佇まいをしています。待合いスペースも備えた広いエントランスにはエレベーター3基が設置されています。室内はほぼ整形のシンプルな間取りで、共用部が室外に配置されています。ビルの前面に建物がないため、採光や眺望も良好です。主な設備はOAフロア、セントラル空調と個別空調の併用、男女別トイレ等です。平面駐車場も併設されていますので、お車も利用しやすい環境です。渋谷駅周辺の飲食店や様々な施設が徒歩圏内ですので、利便性についても言うことなしでしょう。また、目の前の歩道橋で通りの向こうへ渡れるため、ランチタイムや外回りの際に便利です。
渋谷道玄坂東急ビルは渋谷駅(アベニュー口)の他に神泉駅(北口)徒歩7分で利用も可能です。

