渋谷STビル 2階
物件概要
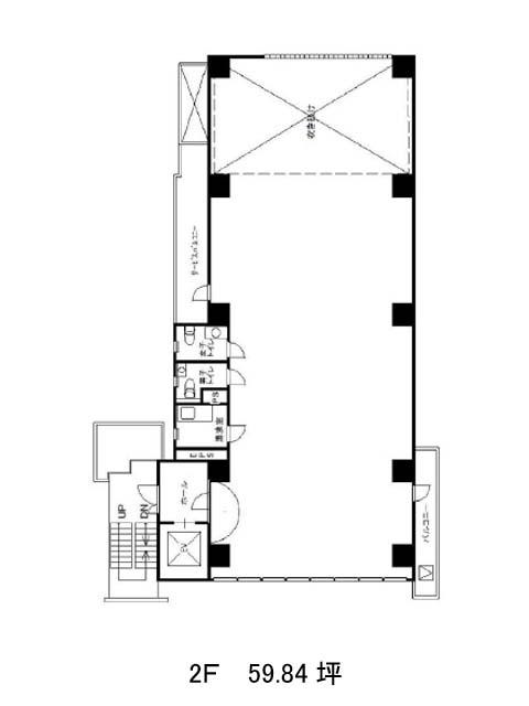
渋谷STビルのテナント募集中区画
| 階数 | 面積 | 賃料(共益費含む) | 保証金 | 入居可能日 | 検討リスト | 詳細 |
|---|---|---|---|---|---|---|
| 2 | 58.42坪 | 1,478,026円/月(25,300円/坪) | 981万円 | 2025年12月上旬 |
…新着物件
アクセス
渋谷STビルの物件情報
渋谷STビル(渋谷区南平台町)は渋谷駅(アベニュー口)から徒歩7分の賃貸オフィスです。渋谷STビルは渋谷駅(アベニュー口)の他に神泉駅(北口)徒歩7分、代官山駅(正面口)徒歩15分で利用も可能です。

