5階は現在募集がありません
1フロア募集区画あり

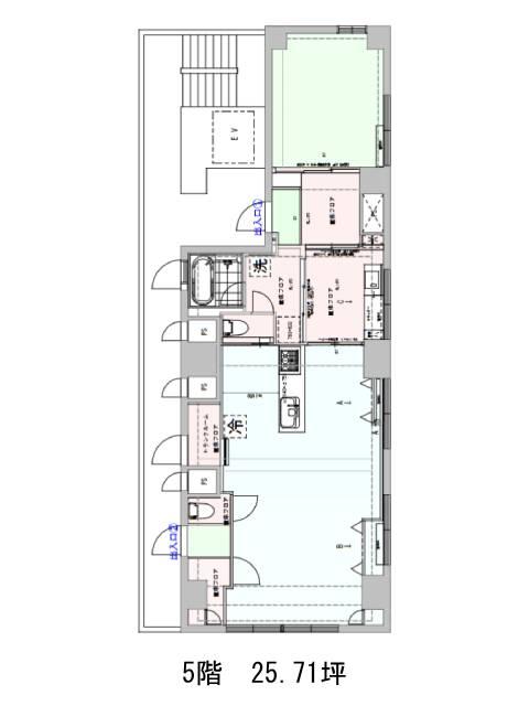
渋谷南平台ビル 5階

前の写真 次の写真

物件概要

物件番号

182-00034-82

物件名

渋谷南平台ビル

所在地

面積

25.71坪

賃料(共益費含)


入居日

募集終了

保証金

礼金

更新料

償却費

竣工

1985年3月

構造

SRC

規模

地上11階/地下1階

トイレ

男女別

空調

個別空調

エレベーター

セキュリティ

駐車場

耐震

新耐震基準

基準階天井高

空室延床面積

26.96坪

最寄駅

情報更新日

2026/01/20

渋谷南平台ビルのテナント募集中区画

階数 面積 賃料(共益費含む) 保証金 入居可能日 検討リスト 詳細
6 26.96坪 800,712円/月(29,700円/坪) 218万円
…新着物件

アクセス

渋谷南平台ビルの物件情報

渋谷南平台ビル(渋谷区南平台町)は神泉駅(南口)から徒歩7分の賃貸オフィスです。
渋谷南平台ビルは神泉駅(南口)の他に渋谷駅(アベニュー口)徒歩7分で利用も可能です。

近隣のエリア・駅から探す