泰美ビル(ヤスミ) 4階
物件概要
物件番号
187-00017-30物件名
泰美ビル(ヤスミ)所在地
- 東京都新宿区愛住町19-13
- アクセスマップ
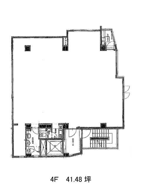
面積
42.89坪賃料(共益費含)
月額566,148円(13,200円/坪)
入居日
相談保証金
2,573,400円礼金
なし更新料
新1ケ月償却費
1ケ月竣工
1978年5月構造
SRC規模
地上6階トイレ
男女別空調
個別空調エレベーター
有セキュリティ
有駐車場
無耐震
旧耐震基準基準階天井高
空室延床面積
42.89坪情報更新日
2026/01/28泰美ビル(ヤスミ)のテナント募集中区画
| 階数 | 面積 | 賃料(共益費含む) | 保証金 | 入居可能日 | 検討リスト | 詳細 |
|---|---|---|---|---|---|---|
| 4 | 42.89坪 | 566,148円/月(13,200円/坪) | 257万円 | 相談 |
…新着物件
泰美ビル(ヤスミ)のアクセス
泰美ビル(ヤスミ)の物件情報
泰美ビル(ヤスミ)(新宿区愛住町)は曙橋駅(A1番出口)から徒歩4分の賃貸オフィスです。泰美ビル(ヤスミ)は曙橋駅(A1番出口)の他に四谷三丁目駅(2番出口)徒歩6分、新宿御苑前駅(2番出口)徒歩12分で利用も可能です。

