植田ビルのテナント募集中区画
| 階数 | 面積 | 賃料(共益費含む) | 保証金 | 入居可能日 | 検討リスト | 詳細 |
|---|---|---|---|---|---|---|
| 2 | 47.39坪 | 417,032円/月(8,800円/坪) | 227万円 | 即 |
…新着物件
植田ビルのアクセス
植田ビルの物件情報
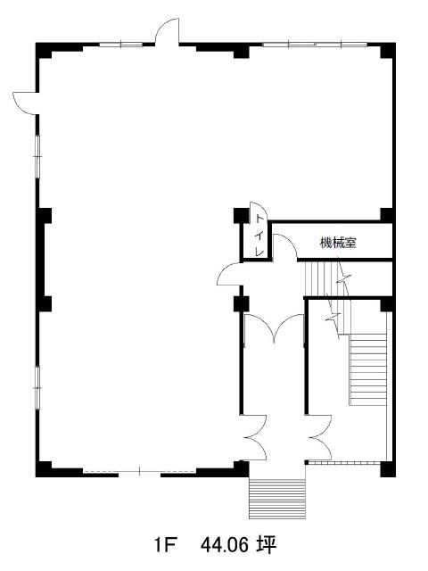
植田ビル(新宿区下落合)は椎名町駅(南口1)から徒歩9分の賃貸オフィスです。1965年竣工、地上4階建RC造のビルです。外観はブラウンのタイル貼りで周囲の環境に溶け込んでいます。駐車場3台分・空調があり、貸室は事務所の他倉庫としての利用も可能です。フロアの一部分に共用部が集約され、すっきりした間取りとなります。室内は3面に窓があり、十分な採光がとれるでしょう。目白通り・聖母坂通りから1本入った通り沿いに建ち、閑静なエリアとなります。近隣にスーパーやコンビニがあり、昼食にご利用頂けるでしょう。植田ビルは椎名町駅(南口1)の他に下落合駅(北口)徒歩10分で利用も可能です。

