5階は現在募集がありません
文英堂ビル 5階
物件概要
文英堂ビルのテナント募集中区画
現在、空室がございません。
アクセス
文英堂ビルの物件情報
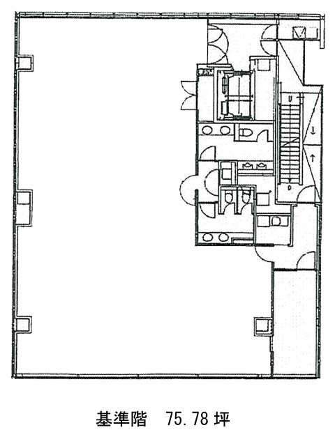
文英堂ビル(新宿区岩戸町)は牛込神楽坂駅(A3番出口)から徒歩1分の賃貸オフィスです。2009年竣工、大久保通り沿いに建つこちらの物件は、縦基調のガラス張りに、上の部分が大小のパネルを組み合わせたような特徴的なデザインになっています。そのお洒落で洗練された印象の外観は視認性も高く、好印象です。メインとなる貸室内には柱が無く、すっきりとしたL字型の執務空間となっています。共用スペースは一か所にまとまって設置されています。エレベーター、個別空調、OAフロア、駐車場が備えられ、セキュリティは機械警備を採用しています。休憩時には神楽坂に数多くある名店をめぐってみるのも良いでしょう。文英堂ビルは牛込神楽坂駅(A3番出口)の他に神楽坂駅(1番出口)徒歩6分、飯田橋駅(B3番出口)徒歩8分で利用も可能です。

