ホンダビルのテナント募集中区画
| 階数 | 面積 | 賃料(共益費含む) | 保証金 | 入居可能日 | 検討リスト | 詳細 |
|---|---|---|---|---|---|---|
| 4 | 44.68坪 | 応相談(応相談) | 応相談 | 2026年6月下旬 |
…新着物件
アクセス
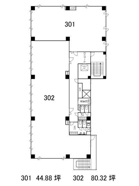
ホンダビルの物件情報
ホンダビル(新宿区高田馬場)は高田馬場駅(7番出口)から徒歩3分の賃貸オフィスです。早稲田通りから少し入った所に立地しています。格子状に張られたブラウンの石材に、濃色のガラス張りが組み合わさった重厚感のある外観です。エントランスは明るく柔らかい色合いで、訪れた人を優しく迎え入れてくれる雰囲気があります。室内は区画によって異なりますが、柱のないすっきりとした間取りですので、レイアウトがしやすいでしょう。設備面は、エレベーター1基、個別空調、一部OAフロアが備えられています。周辺は静かな環境ですが、通りに出ればコンビニや飲食店などが充実しているため、休憩時などの利便性も抜群です。ホンダビルは高田馬場駅(7番出口)の他に西早稲田駅(1番出口)徒歩9分、学習院下駅(停留所)徒歩12分で利用も可能です。

