2階は現在募集がありません
1フロア募集区画あり

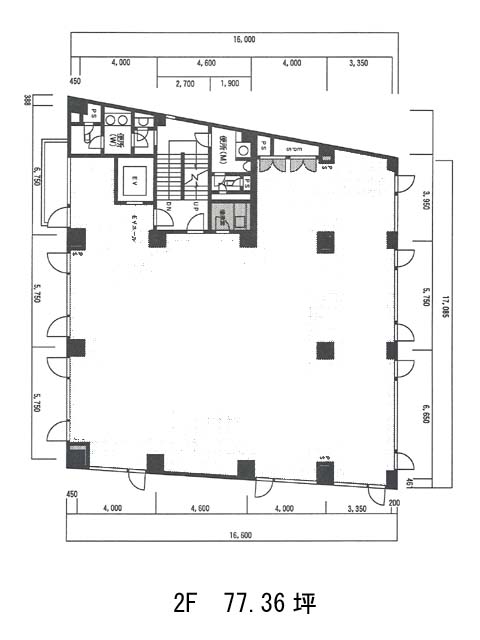
内田ビル 2階

前の写真 次の写真

物件概要

物件番号

202-00090-20

物件名

内田ビル

所在地

面積

77.36坪

賃料(共益費含)


入居日

募集終了

保証金

礼金

更新料

償却費

竣工

1990年2月

構造

SRC

規模

地上6階/地下1階

トイレ

男女別

空調

個別空調

エレベーター

セキュリティ

駐車場

耐震

新耐震基準

基準階天井高

空室延床面積

49.64坪

最寄駅

情報更新日

2025/12/11

内田ビルのテナント募集中区画

階数 面積 賃料(共益費含む) 保証金 入居可能日 検討リスト 詳細
6 49.64坪 928,268円/月(18,700円/坪) 675万円 2026年3月上旬
…新着物件

アクセス

内田ビルの物件情報

内田ビル(新宿区高田馬場)は高田馬場駅(5番出口)から徒歩3分の賃貸オフィスです。
賑やかな駅周辺から少し入った、落ち着いた通りに面して立地しています。地上6階建ての外観は白系のタイル張りで、三面採光設計ですので、自然光のよく入る明るい室内です。正方形に近い無柱のスペースが確保されていますので、レイアウトの自由度は高いでしょう。設備面は、OAフロア、個別空調、男女別トイレが備えられています。機械警備を導入していますので、セキュリティ面も安心です。周辺にはオフィスビルが並び、飲食店の充実する駅前や早稲田通りにもすぐに出られますので、ランチタイムにも困らないでしょう。
内田ビルは高田馬場駅(5番出口)の他に西早稲田駅(2番出口)徒歩10分、学習院下駅(停留所)徒歩14分で利用も可能です。

近隣のエリア・駅から探す