内田ビル 6階
物件概要
物件番号
202-00090-42物件名
内田ビル所在地
- 東京都新宿区高田馬場1-24-16
- アクセスマップ
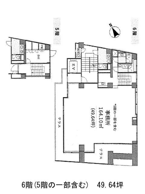
面積
49.64坪賃料(共益費含)
月額928,268円(18,700円/坪)
入居日
2026年3月上旬保証金
6,751,040円礼金
1ケ月更新料
なし償却費
なし竣工
1990年2月構造
SRC規模
地上6階/地下1階トイレ
男女別空調
個別空調エレベーター
有セキュリティ
有駐車場
無耐震
新耐震基準基準階天井高
空室延床面積
49.64坪情報更新日
2026/02/19内田ビルのテナント募集中区画
| 階数 | 面積 | 賃料(共益費含む) | 保証金 | 入居可能日 | 検討リスト | 詳細 |
|---|---|---|---|---|---|---|
| 6 | 49.64坪 | 928,268円/月(18,700円/坪) | 675万円 | 2026年3月上旬 |
…新着物件
内田ビルのアクセス
内田ビルの物件情報
内田ビル(新宿区高田馬場)は高田馬場駅(5番出口)から徒歩3分の賃貸オフィスです。賑やかな駅周辺から少し入った、落ち着いた通りに面して立地しています。地上6階建ての外観は白系のタイル張りで、三面採光設計ですので、自然光のよく入る明るい室内です。正方形に近い無柱のスペースが確保されていますので、レイアウトの自由度は高いでしょう。設備面は、OAフロア、個別空調、男女別トイレが備えられています。機械警備を導入していますので、セキュリティ面も安心です。周辺にはオフィスビルが並び、飲食店の充実する駅前や早稲田通りにもすぐに出られますので、ランチタイムにも困らないでしょう。内田ビルは高田馬場駅(5番出口)の他に西早稲田駅(2番出口)徒歩10分、学習院下駅(停留所)徒歩14分で利用も可能です。

