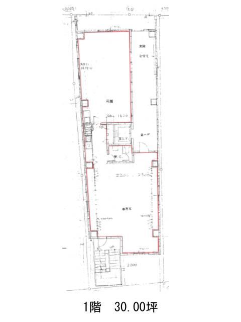
斎藤ビルディング 1階
物件概要
物件番号
208-00101-10物件名
斎藤ビルディング所在地
- 東京都新宿区四谷3-1-4
- アクセスマップ
面積
30.00坪賃料(共益費含)
月額1,056,000円(35,200円/坪)
入居日
相談保証金
11,520,000円礼金
なし更新料
新1ケ月償却費
なし竣工
1982年2月構造
SRC規模
地上8階/地下1階トイレ
確認中空調
個別空調エレベーター
有セキュリティ
有駐車場
無耐震
耐震補強済み基準階天井高
空室延床面積
102.80坪情報更新日
2026/03/02斎藤ビルディングのテナント募集中区画
| 階数 | 面積 | 賃料(共益費含む) | 保証金 | 入居可能日 | 検討リスト | 詳細 |
|---|---|---|---|---|---|---|
| 1 | 30.00坪 | 1,056,000円/月(35,200円/坪) | 1,152万円 | 相談 | ||
| 5 | 36.40坪 | 820,820円/月(22,550円/坪) | 895万円 | 即 | ||
| 6 | 36.40坪 | 820,820円/月(22,550円/坪) | 895万円 | 即 |
…新着物件
斎藤ビルディングのアクセス
斎藤ビルディングの物件情報
斎藤ビルディング(新宿区四谷)は四谷三丁目駅(3番出口)から徒歩3分の賃貸オフィスです。斎藤ビルディングは四谷三丁目駅(3番出口)の他に曙橋駅(A1番出口)徒歩8分、四ツ谷駅(2番出口)徒歩9分で利用も可能です。

