マーキュリースクエア 3階
物件概要
物件番号
208-00130-20物件名
マーキュリースクエア所在地
- 東京都新宿区四谷4-33-2
- アクセスマップ
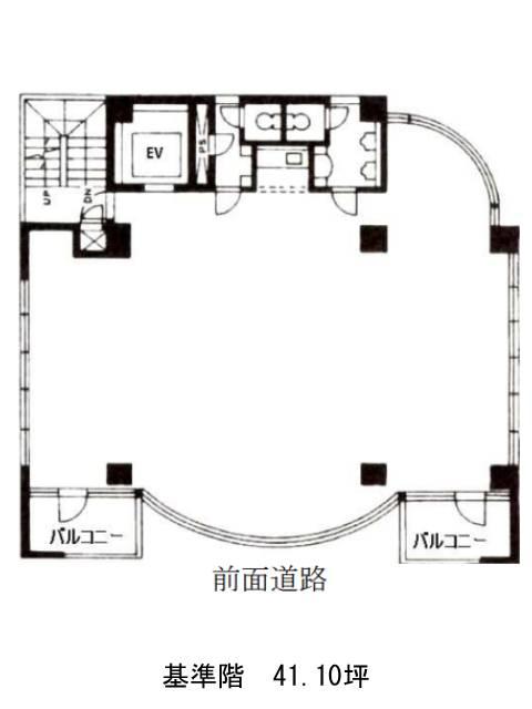
面積
41.10坪賃料(共益費含)
月額587,730円(14,300円/坪)
入居日
2026年4月下旬保証金
2,712,600円礼金
なし更新料
新1ケ月償却費
1ケ月竣工
1989年9月構造
SRC規模
地上10階トイレ
男女別空調
個別空調エレベーター
有セキュリティ
有駐車場
無耐震
新耐震基準基準階天井高
空室延床面積
41.10坪情報更新日
2026/03/23マーキュリースクエアのテナント募集中区画
| 階数 | 面積 | 賃料(共益費含む) | 保証金 | 入居可能日 | 検討リスト | 詳細 |
|---|---|---|---|---|---|---|
| 3 | 41.10坪 | 587,730円/月(14,300円/坪) | 271万円 | 2026年4月下旬 |
…新着物件
マーキュリースクエアのアクセス
マーキュリースクエアの物件情報
マーキュリースクエア(新宿区四谷)は新宿御苑前駅(2番出口)から徒歩6分の賃貸オフィスです。外苑西通りの大木戸坂下交差点を西へ少し入ったところにある、10階建てのビルです。ガラスを多用し、中央部が円柱状に突き出た構造や、左右対称のデザインで美しい外観です。隣はお寺、裏はコインパーキングになっているので、開放的な立地です。基準階は41.1坪の長方形に近い間取りです。給湯室とトイレは男女別で室内に設置されています。バルコニーが部屋の左右に2つあるので、分煙対策に使えそうですね。新宿駅から1駅という便利な立地ながら、歌舞伎町のような繁華街とはまた違った、落ち着いた環境です。マーキュリースクエアは新宿御苑前駅(2番出口)の他に四谷三丁目駅(2番出口)徒歩9分、曙橋駅(A1番出口)徒歩10分で利用も可能です。

