6階は現在募集がありません
1フロア募集区画あり

文化エステート四ツ谷ビル 6階

前の写真 次の写真

物件概要

物件番号

208-00134-94

物件名

文化エステート四ツ谷ビル

所在地

面積

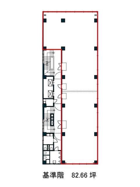
82.66坪

賃料(共益費含)


入居日

募集終了

保証金

礼金

更新料

償却費

竣工

1962年1月

構造

SRC

規模

地上7階/地下1階

トイレ

男女別

空調

個別空調

エレベーター

セキュリティ

駐車場

耐震

旧耐震基準

基準階天井高

空室延床面積

24.44坪

最寄駅

情報更新日

2026/04/24

文化エステート四ツ谷ビルのテナント募集中区画

階数 面積 賃料(共益費含む) 保証金 入居可能日 検討リスト 詳細
地下1 24.44坪 応相談(応相談) 応相談
…新着物件

文化エステート四ツ谷ビルのアクセス

文化エステート四ツ谷ビルの物件情報

文化エステート四ツ谷ビル(新宿区四谷)は四谷三丁目駅(3番出口)から徒歩2分の賃貸オフィスです。
1962年竣工、地上7階地下1階建のビルです。前面道路側に大きなガラス窓が並び、十分な採光が期待できるでしょう。長方形のフロアは、1箇所に共用部が集中しており動線が良いでしょう。設備仕様としてEV・個別空調・機械警備・男女別トイレがあり、オフィスは24時間利用可能です。20坪台~40坪台といった貸室があり、小規模の事務所をお探しの方によいでしょう。2019年に外観・共用部のリニューアルが行われ、築年数を感じさせない清潔感があります。
文化エステート四ツ谷ビルは四谷三丁目駅(3番出口)の他に曙橋駅(A1番出口)徒歩8分、四ツ谷駅(2番出口)徒歩10分で利用も可能です。

近隣のエリア・駅から探す