文化エステート四ツ谷ビルのテナント募集中区画
| 階数 | 面積 | 賃料(共益費含む) | 保証金 | 入居可能日 | 検討リスト | 詳細 |
|---|---|---|---|---|---|---|
| 地下1 | 24.44坪 | 応相談(応相談) | 応相談 | 即 |
…新着物件
アクセス
文化エステート四ツ谷ビルの物件情報
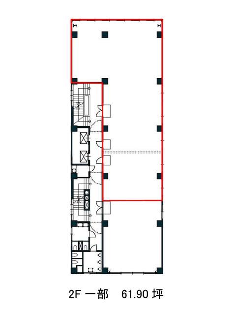
文化エステート四ツ谷ビル(新宿区四谷)は四谷三丁目駅(3番出口)から徒歩2分の賃貸オフィスです。1962年竣工、地上7階地下1階建のビルです。前面道路側に大きなガラス窓が並び、十分な採光が期待できるでしょう。長方形のフロアは、1箇所に共用部が集中しており動線が良いでしょう。設備仕様としてEV・個別空調・機械警備・男女別トイレがあり、オフィスは24時間利用可能です。20坪台~40坪台といった貸室があり、小規模の事務所をお探しの方によいでしょう。2019年に外観・共用部のリニューアルが行われ、築年数を感じさせない清潔感があります。文化エステート四ツ谷ビルは四谷三丁目駅(3番出口)の他に曙橋駅(A1番出口)徒歩8分、四ツ谷駅(2番出口)徒歩10分で利用も可能です。

