2階 201は現在募集がありません
2フロア募集区画あり

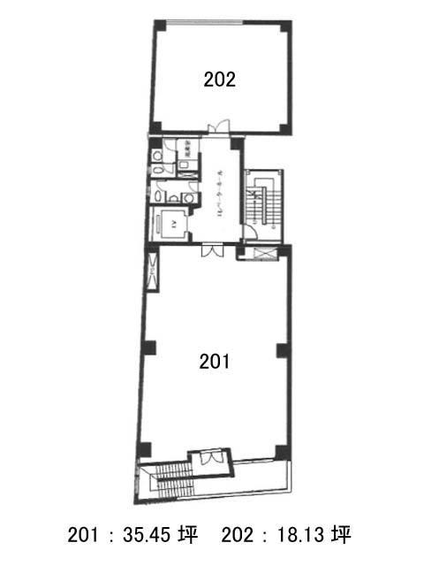
亜細亜観光ビル 2階 201

前の写真 次の写真

物件概要

物件番号

208-00069-30

物件名

亜細亜観光ビル

所在地

面積

35.45坪

賃料(共益費含)


入居日

募集終了

保証金

礼金

更新料

償却費

竣工

1982年10月

構造

SRC

規模

地上9階

トイレ

男女別

空調

個別空調

エレベーター

セキュリティ

駐車場

耐震

新耐震基準

基準階天井高

空室延床面積

78.60坪

最寄駅

情報更新日

2026/03/05

亜細亜観光ビルのテナント募集中区画

階数 面積 賃料(共益費含む) 保証金 入居可能日 検討リスト 詳細
3 41.06坪 632,324円/月(15,400円/坪) 300万円
5 37.54坪 578,116円/月(15,400円/坪) 200万円
…新着物件

亜細亜観光ビルのアクセス

亜細亜観光ビルの物件情報

亜細亜観光ビル(新宿区四谷)は四谷三丁目駅(1番出口)から徒歩2分の賃貸オフィスです。
新宿通りに面し、駅からはシンプルな直線アプローチで到着できるアクセス性の良さが魅力のオフィスビル。道中にはコンビニもあり、ちょっとした用事にも便利です。
基準フロアは約38坪のコンパクトなサイズ感で、小規模オフィスをお探しの方にフィットします。間取りはほぼ整形でレイアウト効率が高く、男女別トイレ・個別空調・機械警備といった基本設備もきちんと整っています。
周辺には多彩な飲食店が立ち並び、ランチタイムや終業後の時間も充実。
亜細亜観光ビルは四谷三丁目駅(1番出口)の他に曙橋駅(A1番出口)徒歩9分、新宿御苑前駅(2番出口)徒歩10分で利用も可能です。

近隣のエリア・駅から探す