亜細亜観光ビルのテナント募集中区画
| 階数 | 面積 | 賃料(共益費含む) | 保証金 | 入居可能日 | 検討リスト | 詳細 |
|---|---|---|---|---|---|---|
| 3 | 41.06坪 | 632,324円/月(15,400円/坪) | 300万円 | 即 | ||
| 5 | 37.54坪 | 578,116円/月(15,400円/坪) | 200万円 | 即 |
…新着物件
亜細亜観光ビルのアクセス
亜細亜観光ビルの物件情報
亜細亜観光ビル(新宿区四谷)は四谷三丁目駅(1番出口)から徒歩2分の賃貸オフィスです。新宿通りに面し、駅からはシンプルな直線アプローチで到着できるアクセス性の良さが魅力のオフィスビル。道中にはコンビニもあり、ちょっとした用事にも便利です。
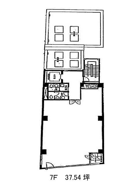
基準フロアは約38坪のコンパクトなサイズ感で、小規模オフィスをお探しの方にフィットします。間取りはほぼ整形でレイアウト効率が高く、男女別トイレ・個別空調・機械警備といった基本設備もきちんと整っています。
周辺には多彩な飲食店が立ち並び、ランチタイムや終業後の時間も充実。亜細亜観光ビルは四谷三丁目駅(1番出口)の他に曙橋駅(A1番出口)徒歩9分、新宿御苑前駅(2番出口)徒歩10分で利用も可能です。

