7階は現在募集がありません
1フロア募集区画あり

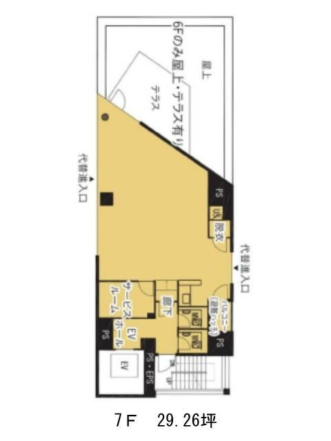
市ヶ谷科学技術イノベーションセンタービル 7階

前の写真 次の写真

物件概要

物件番号

218-00045-6

物件名

市ヶ谷科学技術イノベーションセンタービル

所在地

面積

29.26坪

賃料(共益費含)


入居日

募集終了

保証金

礼金

更新料

償却費

竣工

2021年6月

構造

S造

規模

地上12階

トイレ

男女別

空調

個別空調

エレベーター

セキュリティ

駐車場

耐震

新耐震基準

基準階天井高

2460mm

空室延床面積

29.26坪

最寄駅

情報更新日

2026/05/19

市ヶ谷科学技術イノベーションセンタービルのテナント募集中区画

階数 面積 賃料(共益費含む) 保証金 入居可能日 検討リスト 詳細
11 29.26坪 応相談(応相談) 応相談 2026年10月上旬
…新着物件

市ヶ谷科学技術イノベーションセンタービルのアクセス

市ヶ谷科学技術イノベーションセンタービルの物件情報

市ヶ谷科学技術イノベーションセンタービル(新宿区市谷田町)は市ヶ谷駅(5番出口)から徒歩5分の賃貸オフィスです。
2021年竣工、地上12階建S造の築浅ビルです。ガラスウォールと黒い壁面で、デザイン性の高い外観をしています。基準階面積は29.26坪。EV1基・バルコニー・貸室外の男女別トイレ・個別空調・OAフロアといった設備仕様をしています。貸室は柱が中央に無く、すっきりとした形状をしています。水まわり等の共用部は黒と木目調を基調としたシックなデザインをしています。大きな窓からは、川沿いの緑を広々と見わたせます。
市ヶ谷科学技術イノベーションセンタービルは市ヶ谷駅(5番出口)の他に飯田橋駅(B3番出口)徒歩8分、牛込神楽坂駅(A2番出口)徒歩11分で利用も可能です。

近隣のエリア・駅から探す