市ヶ谷科学技術イノベーションセンタービルのテナント募集中区画
| 階数 | 面積 | 賃料(共益費含む) | 保証金 | 入居可能日 | 検討リスト | 詳細 |
|---|---|---|---|---|---|---|
| 5 | 46.47坪 | 応相談(応相談) | 応相談 | 即 |
…新着物件
アクセス
市ヶ谷科学技術イノベーションセンタービルの物件情報
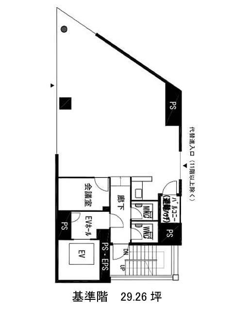
市ヶ谷科学技術イノベーションセンタービル(新宿区市谷田町)は市ヶ谷駅(5番出口)から徒歩5分の賃貸オフィスです。2021年竣工、地上12階建S造の築浅ビルです。ガラスウォールと黒い壁面で、デザイン性の高い外観をしています。基準階面積は29.26坪。EV1基・バルコニー・貸室外の男女別トイレ・個別空調・OAフロアといった設備仕様をしています。貸室は柱が中央に無く、すっきりとした形状をしています。水まわり等の共用部は黒と木目調を基調としたシックなデザインをしています。大きな窓からは、川沿いの緑を広々と見わたせます。市ヶ谷科学技術イノベーションセンタービルは市ヶ谷駅(5番出口)の他に飯田橋駅(B3番出口)徒歩8分、牛込神楽坂駅(A2番出口)徒歩11分で利用も可能です。

