2階 201は現在募集がありません
外濠スカイビルディング 2階 201
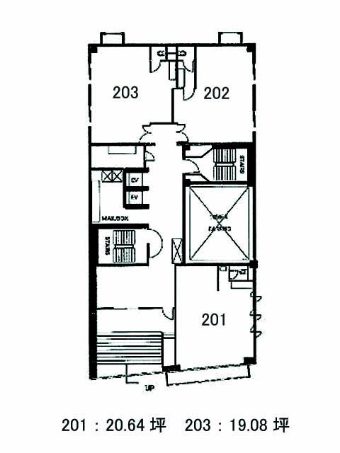
物件概要
外濠スカイビルディングのテナント募集中区画
現在、空室がございません。
アクセス
外濠スカイビルディングの物件情報
外濠スカイビルディング(新宿区市谷本村町)は市ヶ谷駅(7番出口)から徒歩5分の賃貸オフィスです。外堀通り沿いの、JR市ヶ谷駅と四ツ谷駅の間に立地しています。大きな窓面をブラウンの枠で区切った、落ち着いた印象を与える外観です。エントランスには、低層部の石張りの外壁と統一感のある、上品な雰囲気が漂います。室内はレイアウト効率の良い長方形の無柱空間となっています。館内にはエレベーターが2基、OAフロアが備わっています。また、2009年に空調設備のリニューアルが完了しています。機械式駐車場が併設されていますので、車でのアクセスも良好です。休憩時には目の前の外濠公園を散歩して、リフレッシュすることもできそうです。外濠スカイビルディングは市ヶ谷駅(7番出口)の他に四ツ谷駅(3番出口)徒歩7分、曙橋駅(A4番出口)徒歩12分で利用も可能です。

