4階は現在募集がありません
2フロア募集区画あり

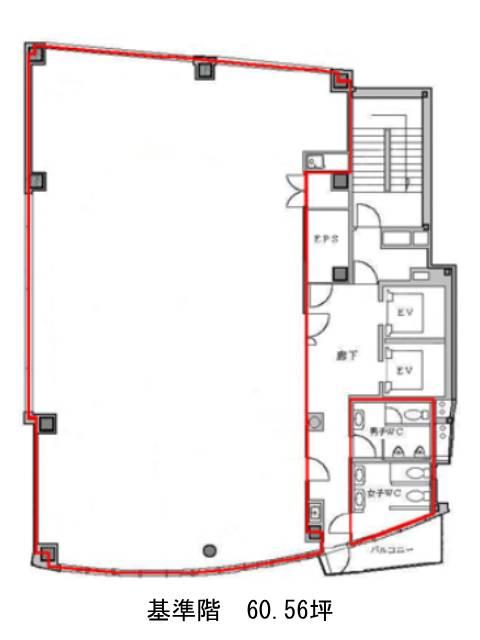
AD市ヶ谷ビル 4階

前の写真 次の写真

物件概要

物件番号

220-00023-30

物件名

AD市ヶ谷ビル

所在地

面積

60.56坪

賃料(共益費含)


入居日

募集終了

保証金

礼金

更新料

償却費

竣工

2010年9月

構造

SRC

規模

地上11階/地下1階

トイレ

男女別

空調

個別空調

エレベーター

セキュリティ

駐車場

耐震

新耐震基準

基準階天井高

2600mm

空室延床面積

121.12坪

最寄駅

情報更新日

2026/03/10

AD市ヶ谷ビルのテナント募集中区画

階数 面積 賃料(共益費含む) 保証金 入居可能日 検討リスト 詳細
3 60.56坪 応相談(応相談) 応相談
7 60.56坪 応相談(応相談) 応相談
…新着物件

AD市ヶ谷ビルのアクセス

AD市ヶ谷ビルの物件情報

AD市ヶ谷ビル(新宿区市谷本村町)は市ヶ谷駅(7番出口)から徒歩4分の賃貸オフィスです。
2010年竣工、外観は爽やかな水色のガラス張りで、所々に使用された赤や黄色のガラスパネルがアクセントになっておりお洒落です。天井の高いエントランスにはテーブルとソファが置かれていますので、待ち合わせ等に使用できます。室内はほぼ長方形のすっきりとした間取りですので、レイアウトが組みやすそうです。設備面としましては、エレベーター、個別空調、OAフロア、カード式の機械警備が完備されています。ビルから歩いてすぐの場所にコンビニがあり、駅周辺にはランチに利用しやすい飲食店や銀行が複数営業しています。外濠公園と対面する環境の良さに加え、交通アクセスも抜群の立地です。
AD市ヶ谷ビルは市ヶ谷駅(7番出口)の他に四ツ谷駅(3番出口)徒歩8分、麹町駅(6番出口)徒歩13分で利用も可能です。

近隣のエリア・駅から探す