AD市ヶ谷ビル 7階
物件概要
物件番号
220-00023-60物件名
AD市ヶ谷ビル所在地
- 東京都新宿区市谷本村町2-5
- アクセスマップ
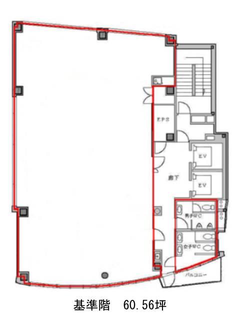
面積
60.56坪賃料(共益費含)
:応相談応相談
入居日
即保証金
応相談礼金
なし更新料
新1ケ月償却費
1ケ月竣工
2010年9月構造
SRC規模
地上11階/地下1階トイレ
男女別空調
個別空調エレベーター
有セキュリティ
有駐車場
有耐震
新耐震基準基準階天井高
2600mm空室延床面積
121.12坪情報更新日
2026/03/10AD市ヶ谷ビルのテナント募集中区画
| 階数 | 面積 | 賃料(共益費含む) | 保証金 | 入居可能日 | 検討リスト | 詳細 |
|---|---|---|---|---|---|---|
| 3 | 60.56坪 | 応相談(応相談) | 応相談 | 即 | ||
| 7 | 60.56坪 | 応相談(応相談) | 応相談 | 即 |
…新着物件
AD市ヶ谷ビルのアクセス
AD市ヶ谷ビルの物件情報
AD市ヶ谷ビル(新宿区市谷本村町)は市ヶ谷駅(7番出口)から徒歩4分の賃貸オフィスです。2010年竣工、外観は爽やかな水色のガラス張りで、所々に使用された赤や黄色のガラスパネルがアクセントになっておりお洒落です。天井の高いエントランスにはテーブルとソファが置かれていますので、待ち合わせ等に使用できます。室内はほぼ長方形のすっきりとした間取りですので、レイアウトが組みやすそうです。設備面としましては、エレベーター、個別空調、OAフロア、カード式の機械警備が完備されています。ビルから歩いてすぐの場所にコンビニがあり、駅周辺にはランチに利用しやすい飲食店や銀行が複数営業しています。外濠公園と対面する環境の良さに加え、交通アクセスも抜群の立地です。AD市ヶ谷ビルは市ヶ谷駅(7番出口)の他に四ツ谷駅(3番出口)徒歩8分、麹町駅(6番出口)徒歩13分で利用も可能です。

