市ヶ谷キャナルコート 8階
物件概要
物件番号
220-00009-80物件名
市ヶ谷キャナルコート所在地
- 東京都新宿区市谷本村町2-21
- アクセスマップ
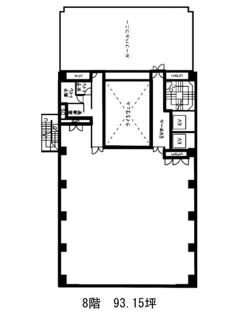
面積
94.82坪賃料(共益費含)
月額2,294,644円(24,200円/坪)
入居日
即保証金
6,258,120円礼金
なし更新料
なし償却費
なし竣工
1992年4月構造
SRC規模
地上9階トイレ
男女別空調
個別空調エレベーター
有セキュリティ
駐車場
有耐震
新耐震基準基準階天井高
空室延床面積
358.82坪情報更新日
2025/12/05市ヶ谷キャナルコートのテナント募集中区画
| 階数 | 面積 | 賃料(共益費含む) | 保証金 | 入居可能日 | 検討リスト | 詳細 |
|---|---|---|---|---|---|---|
| 5 | 169.18坪 | 5,210,744円/月(30,800円/坪) | 1,421万円 | 即 | ||
| 7 | 94.82坪 | 2,190,342円/月(23,100円/坪) | 597万円 | 即 | ||
| 8 | 94.82坪 | 2,294,644円/月(24,200円/坪) | 625万円 | 即 |
…新着物件
アクセス
市ヶ谷キャナルコートの物件情報
市ヶ谷キャナルコート(新宿区市谷本村町)は市ヶ谷駅(7番出口)から徒歩6分の賃貸オフィスです。外堀通りと靖国通りをつなぐ道沿いに位置しています。地上9階建て、1992年竣工のビルです。光沢のある黒い石張りに大きな窓を組み合わせた存在感のある外観は、視認性が高いでしょう。室内は正方形に近い無柱の整形オフィスで、建物の中央にエレベーターや男女別トイレ等の共用設備が配置されています。周辺には徒歩圏内にコンビニがあり、四ツ谷駅近くの商業施設には郵便局や飲食店が入居していますので、事務作業やランチタイムに活用できます。市ヶ谷キャナルコートは市ヶ谷駅(7番出口)の他に四ツ谷駅(3番出口)徒歩7分、曙橋駅(A4番出口)徒歩10分で利用も可能です。

