JF新宿御苑ビルのテナント募集中区画
| 階数 | 面積 | 賃料(共益費含む) | 保証金 | 入居可能日 | 検討リスト | 詳細 |
|---|---|---|---|---|---|---|
| 3 | 40.00坪 | 715,000円/月(17,875円/坪) | 354万円 | 即 | ||
| 4 | 40.00坪 | 715,000円/月(17,875円/坪) | 354万円 | 即 | ||
| 10 | 35.26坪 | 715,000円/月(20,278円/坪) | 354万円 | 即 |
…新着物件
アクセス
JF新宿御苑ビルの物件情報
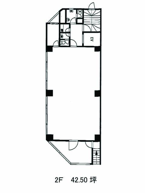
JF新宿御苑ビル(新宿区新宿)は新宿御苑前駅(2番出口)から徒歩3分の賃貸オフィスです。1973年竣工、地上10階建SRC造のビルです。角地に建ち視認性が高いでしょう。貸室は二面採光で室内に十分な明るさがとりいれられるでしょう。EV1基・光ケーブル・空調・バルコニー・OAフロア・貸室外の男女別トイレといった設備仕様がそろいます。間取りは無柱空間のシンプルな形状で配置がしやすいでしょう。管理状態が良く、ビルの築年数を感じさせない清潔感があります。周辺は多様なジャンルの飲食店があり、ランチにご利用頂けるでしょう。JF新宿御苑ビルは新宿御苑前駅(2番出口)の他に四谷三丁目駅(2番出口)徒歩9分、新宿三丁目駅(C5番出口)徒歩9分で利用も可能です。

