JF新宿御苑ビル 4階
物件概要
物件番号
230-00049-40物件名
JF新宿御苑ビル所在地
- 東京都新宿区新宿1-2-9
- アクセスマップ
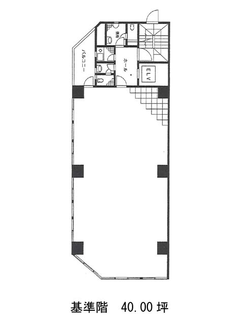
面積
40.00坪賃料(共益費含)
月額715,000円(17,875円/坪)
入居日
即保証金
3,540,000円礼金
1ケ月更新料
新1ケ月償却費
2ケ月竣工
1973年11月構造
SRC規模
地上10階トイレ
男女別空調
個別空調エレベーター
有セキュリティ
駐車場
無耐震
旧耐震基準基準階天井高
空室延床面積
115.26坪情報更新日
2026/02/18JF新宿御苑ビルのテナント募集中区画
| 階数 | 面積 | 賃料(共益費含む) | 保証金 | 入居可能日 | 検討リスト | 詳細 |
|---|---|---|---|---|---|---|
| 3 | 40.00坪 | 715,000円/月(17,875円/坪) | 354万円 | 即 | ||
| 4 | 40.00坪 | 715,000円/月(17,875円/坪) | 354万円 | 即 | ||
| 10 | 35.26坪 | 715,000円/月(20,278円/坪) | 354万円 | 即 |
…新着物件
JF新宿御苑ビルのアクセス
JF新宿御苑ビルの物件情報
JF新宿御苑ビル(新宿区新宿)は新宿御苑前駅(2番出口)から徒歩3分の賃貸オフィスです。1973年竣工、地上10階建SRC造のビルです。角地に建ち視認性が高いでしょう。貸室は二面採光で室内に十分な明るさがとりいれられるでしょう。EV1基・光ケーブル・空調・バルコニー・OAフロア・貸室外の男女別トイレといった設備仕様がそろいます。間取りは無柱空間のシンプルな形状で配置がしやすいでしょう。管理状態が良く、ビルの築年数を感じさせない清潔感があります。周辺は多様なジャンルの飲食店があり、ランチにご利用頂けるでしょう。JF新宿御苑ビルは新宿御苑前駅(2番出口)の他に四谷三丁目駅(2番出口)徒歩9分、新宿三丁目駅(C5番出口)徒歩9分で利用も可能です。

