7階は現在募集がありません
3フロア募集区画あり

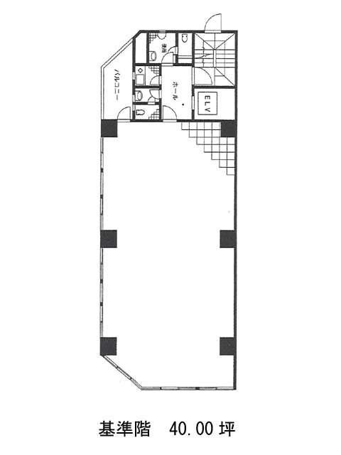
JF新宿御苑ビル 7階

前の写真 次の写真

物件概要

物件番号

230-00049-70

物件名

JF新宿御苑ビル

所在地

面積

40.00坪

賃料(共益費含)


入居日

募集終了

保証金

礼金

更新料

償却費

竣工

1973年11月

構造

SRC

規模

地上10階

トイレ

男女別

空調

個別空調

エレベーター

セキュリティ

駐車場

耐震

旧耐震基準

基準階天井高

空室延床面積

115.26坪

最寄駅

情報更新日

2026/02/18

JF新宿御苑ビルのテナント募集中区画

階数 面積 賃料(共益費含む) 保証金 入居可能日 検討リスト 詳細
3 40.00坪 715,000円/月(17,875円/坪) 354万円
4 40.00坪 715,000円/月(17,875円/坪) 354万円
10 35.26坪 715,000円/月(20,278円/坪) 354万円
…新着物件

JF新宿御苑ビルのアクセス

JF新宿御苑ビルの物件情報

JF新宿御苑ビル(新宿区新宿)は新宿御苑前駅(2番出口)から徒歩3分の賃貸オフィスです。
1973年竣工、地上10階建SRC造のビルです。角地に建ち視認性が高いでしょう。貸室は二面採光で室内に十分な明るさがとりいれられるでしょう。EV1基・光ケーブル・空調・バルコニー・OAフロア・貸室外の男女別トイレといった設備仕様がそろいます。間取りは無柱空間のシンプルな形状で配置がしやすいでしょう。管理状態が良く、ビルの築年数を感じさせない清潔感があります。周辺は多様なジャンルの飲食店があり、ランチにご利用頂けるでしょう。
JF新宿御苑ビルは新宿御苑前駅(2番出口)の他に四谷三丁目駅(2番出口)徒歩9分、新宿三丁目駅(C5番出口)徒歩9分で利用も可能です。

近隣のエリア・駅から探す