THE PORTAL IIDABASHI 2階 西
物件概要
物件番号
231-00040-55物件名
THE PORTAL IIDABASHI所在地
- 東京都新宿区新小川町8-30
- アクセスマップ
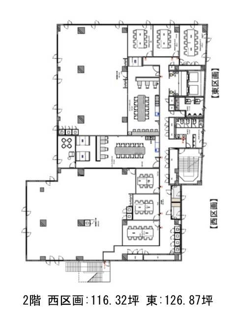
面積
128.87坪賃料(共益費含)
月額3,543,925円(27,500円/坪)
入居日
即保証金
25,774,000円礼金
なし更新料
なし償却費
なし竣工
1991年10月構造
RC規模
地上4階/地下2階トイレ
男女別空調
個別空調エレベーター
有セキュリティ
有駐車場
有耐震
新耐震基準基準階天井高
250mm空室延床面積
444.91坪情報更新日
2026/02/18THE PORTAL IIDABASHIのテナント募集中区画
…新着物件
THE PORTAL IIDABASHIのアクセス
THE PORTAL IIDABASHIの物件情報
THE PORTAL IIDABASHI(新宿区新小川町)は飯田橋駅(C1番出口)から徒歩8分の賃貸オフィスです。1991年竣工の4階建て。2021年にリニューアル工事を完了しています。マンションやオフィスの建ち並ぶ落ち着いた雰囲気の通り沿いに立地し、正面から見ると5角形の外観が目を引きます。さらに1階のエントランスは木目調の壁と、沢山のダウンライトに照らされて大変スタイリッシュです。オフィス内は白を基調とした清潔感のある空間です。また、全面に窓が設けられていますので、通風性や採光も良いでしょう。設備面は、エレベーターが2基、個別空調、男女別トイレがご利用になれます。セキュリティに関しましては安心の機械警備を導入しています。周辺には、徒歩圏内にコンビニやスーパーなどが営業しています。THE PORTAL IIDABASHIは飯田橋駅(C1番出口)の他に牛込神楽坂駅(A3番出口)徒歩10分、神楽坂駅(1番出口)徒歩11分で利用も可能です。

