龍公亭ビル 4階
物件概要
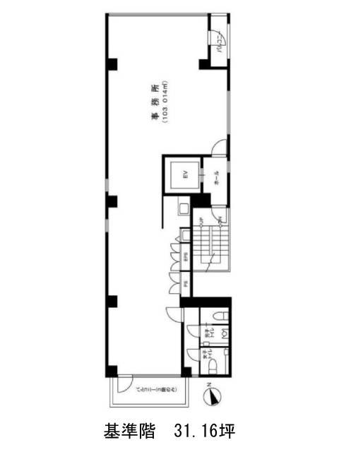
龍公亭ビルのテナント募集中区画
| 階数 | 面積 | 賃料(共益費含む) | 保証金 | 入居可能日 | 検討リスト | 詳細 |
|---|---|---|---|---|---|---|
| 4 | 31.16坪 | 610,500円/月(19,593円/坪) | 309万円 | 即 |
…新着物件
龍公亭ビルのアクセス
龍公亭ビルの物件情報
龍公亭ビル(新宿区神楽坂)は飯田橋駅(B3番出口)から徒歩3分の賃貸オフィスです。龍公亭ビルは飯田橋駅(B3番出口)の他に牛込神楽坂駅(A3番出口)徒歩6分、神楽坂駅(1番出口)徒歩8分で利用も可能です。

