2階 Cは現在募集がありません
4フロア募集区画あり

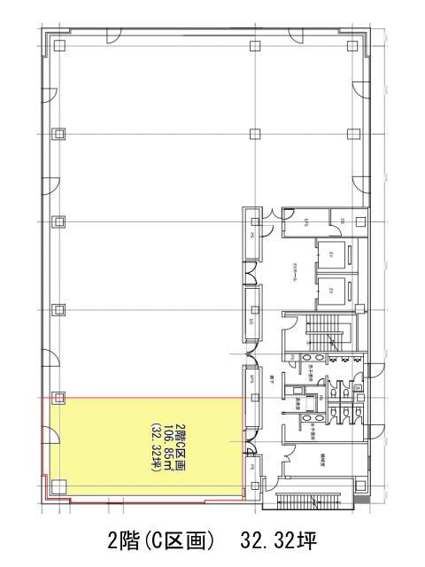
野村不動産西新宿共同ビル 2階 C

前の写真 次の写真

物件概要

物件番号

237-00235-107

物件名

野村不動産西新宿共同ビル

所在地

面積

32.32坪

賃料(共益費含)


入居日

募集終了

保証金

礼金

更新料

償却費

竣工

1993年10月

構造

規模

地上8階/地下1階

トイレ

男女別

空調

個別空調

エレベーター

セキュリティ

駐車場

耐震

新耐震基準

基準階天井高

2550mm

空室延床面積

488.35坪

最寄駅

情報更新日

2025/12/02

野村不動産西新宿共同ビルのテナント募集中区画

階数 面積 賃料(共益費含む) 保証金 入居可能日 検討リスト 詳細
2 150.32坪 応相談(応相談) 応相談
3 182.64坪 応相談(応相談) 応相談 2026年1月上旬
5 32.32坪 応相談(応相談) 応相談 2026年6月上旬
8 123.07坪 応相談(応相談) 応相談 2025年12月上旬
…新着物件

アクセス

野村不動産西新宿共同ビルの物件情報

野村不動産西新宿共同ビル(新宿区西新宿)は西新宿駅(1番出口)から徒歩1分の賃貸オフィスです。
本物件は駅直結のロケーションが大きな魅力。天候に左右されず、快適に通勤いただける利便性は、来訪者にとっても好印象を与えそうです。通勤時のストレス軽減に加え、移動を伴うビジネスシーンでもメリットを実感いただけるでしょう。
外観はグレーを基調にした落ち着きのあるトーンでまとめられており、堅実で安定感のある印象を与えます。エントランスや共用部も清潔感があり、来訪者にも好印象を与える空間設計です。
基準階は約183坪のL字型区画。ゆとりあるフロア構成で、これまで分割募集の実績もあることから、多様なレイアウトや組織構成にも柔軟に対応可能です。水回りは貸室外に集約されており、執務スペースを最大限に有効活用しやすい点もポイントです。
さらに、本物件には大手銀行の支店がテナントとして入居中です。これにより、建物自体への信頼感や安心感が高まり、来客時の印象にも好影響が期待できます。また、日々の業務においても、近接した金融機関を活用できる利便性は大きなメリット。急な振込手続きや現金の入出金、各種金融相談がスムーズに行えるなど、ビジネスに直結する使いやすさを実感いただける環境です。
野村不動産西新宿共同ビルは西新宿駅(1番出口)の他に都庁前駅(E3番出口)徒歩5分、新宿駅(A18番出口)徒歩7分で利用も可能です。

近隣のエリア・駅から探す