イマス西新宿第1ビル 5階 5B新着
物件概要
物件番号
237-00303-150物件名
イマス西新宿第1ビル所在地
- 東京都新宿区西新宿3-9-2
- アクセスマップ
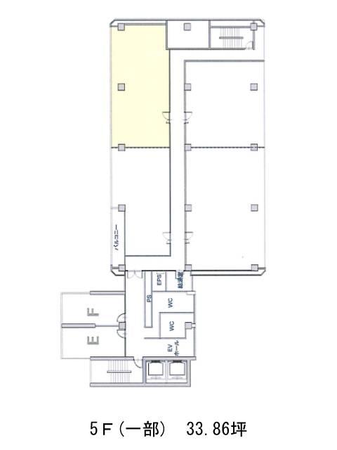
面積
33.86坪賃料(共益費含)
:応相談応相談
入居日
2026年8月上旬保証金
応相談礼金
なし更新料
なし償却費
2ケ月竣工
1976年10月構造
SRC規模
地上8階/地下2階トイレ
男女別空調
個別空調エレベーター
有セキュリティ
有駐車場
有耐震
耐震補強済み基準階天井高
2400~2850mm空室延床面積
33.86坪情報更新日
2026/03/03イマス西新宿第1ビルのテナント募集中区画
| 階数 | 面積 | 賃料(共益費含む) | 保証金 | 入居可能日 | 検討リスト | 詳細 |
|---|---|---|---|---|---|---|
| 5 | 33.86坪 | 応相談(応相談) | 応相談 | 2026年8月上旬 |
…新着物件
イマス西新宿第1ビルのアクセス
イマス西新宿第1ビルの物件情報
イマス西新宿第1ビル(新宿区西新宿)は初台駅(出口1)から徒歩7分の賃貸オフィスです。十二社通り沿いに位置し、前面の開けた環境により採光性に優れています。
基準階は約170坪と広めの設計で、小規模からの分割区画にも対応可能なフレキシブルな募集形態が魅力です。ただし貸室によっては室内に柱があるため、レイアウトを検討される際は内見での確認をおすすめします。
水回りは室外共用部に集約されており、専有部分を有効活用できます。エレベーターは2基設置されており、朝夕の混雑緩和に繋がるでしょう。
その他の設備は個別空調、OAフロア、機械警備、駐車場等を備え、快適性と利便性のバランスが取れた環境です。イマス西新宿第1ビルは初台駅(出口1)の他に都庁前駅(A5番出口)徒歩9分、新宿駅(8番出口)徒歩10分で利用も可能です。

