新宿ラムダックスビル 2階 203
物件概要
物件番号
246-00016-103物件名
新宿ラムダックスビル所在地
- 東京都新宿区大久保2-4-12
- アクセスマップ
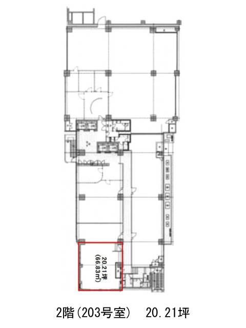
面積
20.21坪賃料(共益費含)
月額352,000円(17,417円/坪)
入居日
即保証金
3,200,051円礼金
なし更新料
なし償却費
なし竣工
1992年12月構造
SRC規模
地上12階/地下3階トイレ
男女別空調
個別空調エレベーター
有セキュリティ
有駐車場
有耐震
新耐震基準基準階天井高
2500mm空室延床面積
20.21坪情報更新日
2025/10/23新宿ラムダックスビルのテナント募集中区画
| 階数 | 面積 | 賃料(共益費含む) | 保証金 | 入居可能日 | 検討リスト | 詳細 |
|---|---|---|---|---|---|---|
| 2 | 20.21坪 | 352,000円/月(17,417円/坪) | 320万円 | 即 |
…新着物件
アクセス
新宿ラムダックスビルの物件情報
新宿ラムダックスビル(新宿区大久保)は西早稲田駅(3番出口)から徒歩4分の賃貸オフィスです。新宿ラムダックスビルは西早稲田駅(3番出口)の他に東新宿駅(出口2)徒歩6分、新大久保駅(出口)徒歩14分で利用も可能です。

