2階は現在募集がありません
1フロア募集区画あり
日土地ビル 2階
物件概要
物件番号
380-00014-121物件名
日土地ビル所在地
- 東京都千代田区霞が関1-4-1
- アクセスマップ
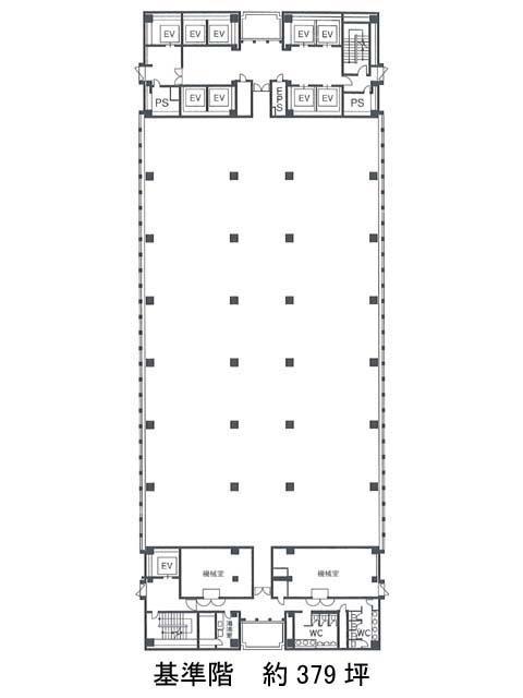
面積
379.00坪賃料(共益費含)
−入居日
募集終了保証金
−礼金
−更新料
−償却費
−竣工
1974年8月構造
SRC規模
地上17階/地下2階トイレ
男女別空調
セントラル/個別空調エレベーター
有セキュリティ
駐車場
無耐震
旧耐震基準基準階天井高
2550mm空室延床面積
49.21坪情報更新日
2026/04/01日土地ビルのテナント募集中区画
| 階数 | 面積 | 賃料(共益費含む) | 保証金 | 入居可能日 | 検討リスト | 詳細 |
|---|---|---|---|---|---|---|
| 4 | 49.21坪 | 応相談(応相談) | 応相談 | 2026年10月 |
…新着物件
日土地ビルのアクセス
日土地ビルの物件情報
日土地ビル(千代田区霞が関)は虎ノ門駅(7番出口)から徒歩3分の賃貸オフィスです。当ビルは、駅至近の角地に立地し、開放感あるロケーションが魅力の大型オフィス物件。両サイドに高層建物が隣接しておらず、自然光をしっかり取り込める点も働きやすさにつながります。
1フロアあたりの面積は約380坪とスケールがありながら、小~中規模の分割対応にも柔軟。用途や組織規模に応じたレイアウトが検討しやすく、フロアによっては柱の位置に留意が必要ですが、OAフロア仕様で配線処理もすっきりと仕上がります。
エレベーターは8基設置されており、フロアボリュームに対して十分な対応力。来客時や朝夕の移動でもストレスを感じにくい設計です。周辺には飲食店やコンビニ、郵便局も点在しており、日々の業務環境を支える利便性も申し分ありません。日土地ビルは虎ノ門駅(7番出口)の他に霞ケ関駅(A12番出口)徒歩3分、虎ノ門ヒルズ駅(B4番出口)徒歩7分で利用も可能です。

