24階は現在募集がありません
1フロア募集区画あり

霞が関コモンゲート西館 24階

前の写真 次の写真

物件概要

物件番号

380-00018-100

物件名

霞が関コモンゲート西館

所在地

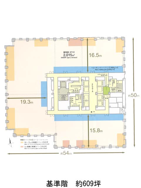
面積

609.78坪

賃料(共益費含)


入居日

募集終了

保証金

礼金

更新料

償却費

竣工

2007年9月

構造

規模

地上38階/地下3階

トイレ

男女別

空調

インテリア

エレベーター

セキュリティ

駐車場

耐震

新耐震基準

基準階天井高

2800mm

空室延床面積

330.13坪

最寄駅

情報更新日

2026/03/05

霞が関コモンゲート西館のテナント募集中区画

階数 面積 賃料(共益費含む) 保証金 入居可能日 検討リスト 詳細
32 330.13坪 応相談(応相談) 応相談
…新着物件

霞が関コモンゲート西館のアクセス

霞が関コモンゲート西館の物件情報

霞が関コモンゲート西館(千代田区霞が関)は霞ケ関駅(A13番出口)から徒歩4分の賃貸オフィスです。
「霞が関コモンゲート」は高層ビルの「西館」「東館」と商業施設が入居している「アネックス棟」、「旧文部省庁舎」の4棟で構成されており、「西館」は2007年竣工、地上38階建て、ワンフロア約600坪の駅からほぼ直結している超高層オフィスビルです。耐震設備は超高層建築物の構造計算基準で定められた先進の制振・耐震工法を導入。下層階には官庁が、上層階は民間スペース、飲食店やセミナースペースなどの商業施設も一部入居している大変便利な複合ビルです。駐車場は機械式が54台、自走式が69台完備され、地下1階には車寄せがあるため、雨に濡れる心配もありません。
霞が関コモンゲート西館は霞ケ関駅(A13番出口)の他に虎ノ門駅(6番出口)徒歩4分、国会議事堂前駅(4番出口)徒歩8分で利用も可能です。

近隣のエリア・駅から探す