9階は現在募集がありません
1フロア募集区画あり

丸の内北口ビルディング 9階

前の写真 次の写真

物件概要

物件番号

382-00030-44

物件名

丸の内北口ビルディング

所在地

面積

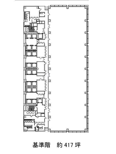
417.03坪

賃料(共益費含)


入居日

募集終了

保証金

礼金

更新料

償却費

竣工

2004年8月

構造

S造

規模

地上29階/地下4階

トイレ

男女別

空調

個別空調

エレベーター

セキュリティ

駐車場

耐震

新耐震基準

基準階天井高

空室延床面積

249.40坪

最寄駅

情報更新日

2025/11/28

丸の内北口ビルディングのテナント募集中区画

階数 面積 賃料(共益費含む) 保証金 入居可能日 検討リスト 詳細
21 249.40坪 応相談(応相談) 応相談 2026年7月上旬
…新着物件

アクセス

丸の内北口ビルディングの物件情報

丸の内北口ビルディング(千代田区丸の内)は大手町駅(B2b番出口)から徒歩1分の賃貸オフィスです。
2004年竣工でガラス張りの外観が美しく、広いエントランスも好印象を与えます。3方向に面した窓から入る光で、明るく開放的なフロアになるでしょう。室内には支柱が無く、綺麗な長方形になっているため、デスク等、比較的自由なレイアウトを組むことが可能でしょう。新耐震基準の物件で、男女別のトイレが設置されています。ビルの近くには飲食店やコンビニが多くあり、便利なエリアとなっております。
丸の内北口ビルディングは大手町駅(B2b番出口)の他に東京駅(14番出口)徒歩3分、日本橋駅(A1番出口)徒歩7分で利用も可能です。

近隣のエリア・駅から探す