Biz Feel Ichigaya 4階
物件概要
物件番号
385-00116-43物件名
Biz Feel Ichigaya所在地
- 東京都千代田区九段南4-7-19
- アクセスマップ
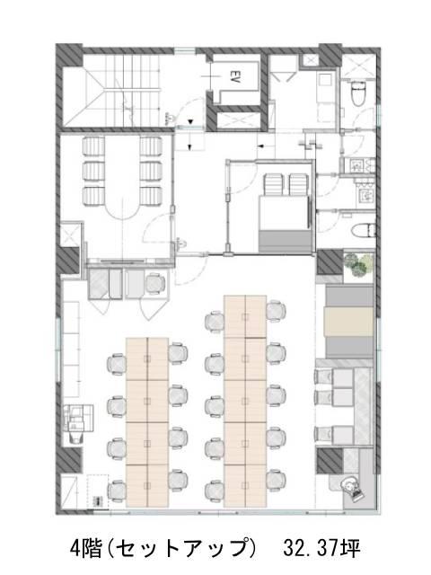
面積
32.37坪賃料(共益費含)
月額1,068,208円(33,000円/坪)
入居日
即保証金
応相談礼金
なし更新料
なし償却費
なし竣工
1985年11月構造
RC規模
地上6階トイレ
男女別空調
エレベーター
有セキュリティ
駐車場
無耐震
新耐震基準基準階天井高
空室延床面積
104.66坪情報更新日
2025/12/15Biz Feel Ichigayaのテナント募集中区画
| 階数 | 面積 | 賃料(共益費含む) | 保証金 | 入居可能日 | 検討リスト | 詳細 |
|---|---|---|---|---|---|---|
| 5-6F | 39.92坪 | 1,185,624円/月(29,700円/坪) | 646万円 | 2026年4月上旬 | ||
| 2 | 32.37坪 | 1,068,208円/月(33,000円/坪) | 応相談 | 2026年5月上旬 | ||
| 4 | 32.37坪 | 1,068,208円/月(33,000円/坪) | 応相談 | 即 |
…新着物件
アクセス
Biz Feel Ichigayaの物件情報
Biz Feel Ichigaya(千代田区九段南)は市ヶ谷駅(A3番出口)から徒歩2分の賃貸オフィスです。Biz Feel Ichigayaは市ヶ谷駅(A3番出口)の他に半蔵門駅(5番出口)徒歩9分、麹町駅(6番出口)徒歩11分で利用も可能です。

