1階は現在募集がありません
1フロア募集区画あり

麹町秀永ビル 1階

前の写真 次の写真

物件概要

物件番号

385-00121-20

物件名

麹町秀永ビル

所在地

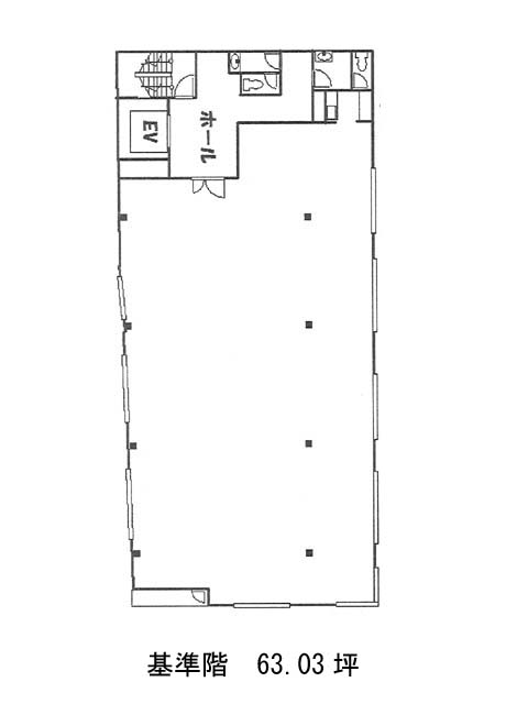
面積

63.03坪

賃料(共益費含)


入居日

募集終了

保証金

礼金

更新料

償却費

竣工

1993年2月

構造

RC

規模

地上6階/地下1階

トイレ

男女別

空調

個別空調

エレベーター

セキュリティ

駐車場

耐震

新耐震基準

基準階天井高

2445mm

空室延床面積

63.03坪

最寄駅

情報更新日

2026/02/03

麹町秀永ビルのテナント募集中区画

階数 面積 賃料(共益費含む) 保証金 入居可能日 検討リスト 詳細
2 63.03坪 1,247,994円/月(19,800円/坪) 756万円 2026年3月
…新着物件

麹町秀永ビルのアクセス

麹町秀永ビルの物件情報

麹町秀永ビル(千代田区九段南)は市ヶ谷駅(A3番出口)から徒歩3分の賃貸オフィスです。
グレー調の石造りがスタイリッシュな印象を与える外観のオフィスビル。角地に位置し、駅からのアクセスも良好なロケーションです。
基準階は約63坪の貸室で、OAフロアを採用しており、レイアウトの自由度にも対応します。室内には柱があるため、内装計画時にはその点を踏まえたプランニングが必要ですが、水回りは共用部に設けられているため、執務エリアをすっきりと確保できます。セキュリティ面では機械警備を導入しており、安心感も備えた物件です。
麹町秀永ビルは市ヶ谷駅(A3番出口)の他に半蔵門駅(5番出口)徒歩10分、麹町駅(6番出口)徒歩12分で利用も可能です。

近隣のエリア・駅から探す