麹町秀永ビルのテナント募集中区画
| 階数 | 面積 | 賃料(共益費含む) | 保証金 | 入居可能日 | 検討リスト | 詳細 |
|---|---|---|---|---|---|---|
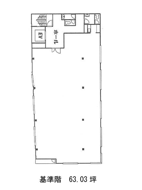
| 2 | 63.03坪 | 1,247,994円/月(19,800円/坪) | 756万円 | 2026年3月 |
…新着物件
麹町秀永ビルのアクセス
麹町秀永ビルの物件情報
麹町秀永ビル(千代田区九段南)は市ヶ谷駅(A3番出口)から徒歩3分の賃貸オフィスです。グレー調の石造りがスタイリッシュな印象を与える外観のオフィスビル。角地に位置し、駅からのアクセスも良好なロケーションです。
基準階は約63坪の貸室で、OAフロアを採用しており、レイアウトの自由度にも対応します。室内には柱があるため、内装計画時にはその点を踏まえたプランニングが必要ですが、水回りは共用部に設けられているため、執務エリアをすっきりと確保できます。セキュリティ面では機械警備を導入しており、安心感も備えた物件です。麹町秀永ビルは市ヶ谷駅(A3番出口)の他に半蔵門駅(5番出口)徒歩10分、麹町駅(6番出口)徒歩12分で利用も可能です。

