2階は現在募集がありません
1フロア募集区画あり

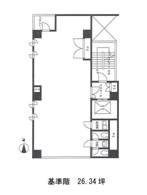
みづまんビル 2階

前の写真 次の写真

物件概要

物件番号

385-00132-20

物件名

みづまんビル

所在地

面積

26.34坪

賃料(共益費含)


入居日

募集終了

保証金

礼金

更新料

償却費

竣工

1991年11月

構造

SRC

規模

地上10階

トイレ

男女別

空調

個別空調

エレベーター

セキュリティ

駐車場

耐震

新耐震基準

基準階天井高

空室延床面積

21.18坪

最寄駅

情報更新日

2025/12/25

みづまんビルのテナント募集中区画

階数 面積 賃料(共益費含む) 保証金 入居可能日 検討リスト 詳細
1 21.18坪 550,000円/月(25,968円/坪) 500万円
…新着物件

みづまんビルのアクセス

みづまんビルの物件情報

みづまんビル(千代田区九段南)は九段下駅(1番出口)から徒歩6分の賃貸オフィスです。
みづまんビルは九段下駅(1番出口)の他に市ヶ谷駅(A3番出口)徒歩10分、神保町駅(A1番出口)徒歩12分で利用も可能です。

近隣のエリア・駅から探す