みづまんビルのテナント募集中区画
| 階数 | 面積 | 賃料(共益費含む) | 保証金 | 入居可能日 | 検討リスト | 詳細 |
|---|---|---|---|---|---|---|
| 1 | 21.18坪 | 550,000円/月(25,968円/坪) | 500万円 | 即 |
…新着物件
アクセス
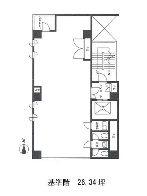
みづまんビルの物件情報
みづまんビル(千代田区九段南)は九段下駅(1番出口)から徒歩6分の賃貸オフィスです。みづまんビルは九段下駅(1番出口)の他に市ヶ谷駅(A3番出口)徒歩10分、神保町駅(A1番出口)徒歩12分で利用も可能です。

