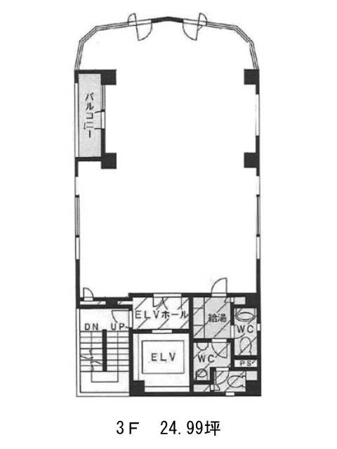
第32荒井ビルのテナント募集中区画
| 階数 | 面積 | 賃料(共益費含む) | 保証金 | 入居可能日 | 検討リスト | 詳細 |
|---|---|---|---|---|---|---|
| 5 | 25.09坪 | 応相談(応相談) | 応相談 | 即 | ||
| 10 | 24.76坪 | 571,956円/月(23,100円/坪) | 519万円 | 即 |
…新着物件
第32荒井ビルのアクセス
第32荒井ビルの物件情報
第32荒井ビル(千代田区九段南)は市ヶ谷駅(A3番出口)から徒歩5分の賃貸オフィスです。第32荒井ビルは市ヶ谷駅(A3番出口)の他に九段下駅(1番出口)徒歩11分、半蔵門駅(5番出口)徒歩11分で利用も可能です。

