九段ビルのテナント募集中区画
| 階数 | 面積 | 賃料(共益費含む) | 保証金 | 入居可能日 | 検討リスト | 詳細 |
|---|---|---|---|---|---|---|
| 3 | 24.00坪 | 369,600円/月(15,400円/坪) | 220万円 | 即 | ||
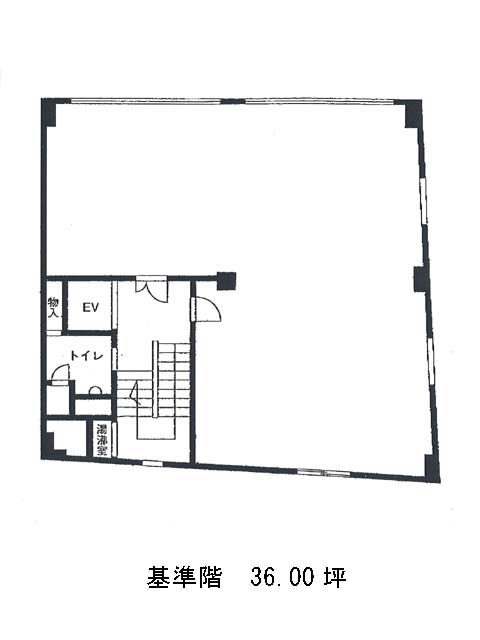
| 5 | 36.00坪 | 554,400円/月(15,400円/坪) | 331万円 | 即 | ||
| 9 | 36.00坪 | 554,400円/月(15,400円/坪) | 331万円 | 即 |
…新着物件
九段ビルのアクセス
九段ビルの物件情報
九段ビル(千代田区九段南)は九段下駅(1番出口)から徒歩4分の賃貸オフィスです。九段ビルは九段下駅(1番出口)の他に市ヶ谷駅(A3番出口)徒歩11分、神保町駅(A1番出口)徒歩11分で利用も可能です。

