6階は現在募集がありません
2フロア募集区画あり

久保寺ビル 6階

前の写真 次の写真

物件概要

物件番号

385-00051-100

物件名

久保寺ビル

所在地

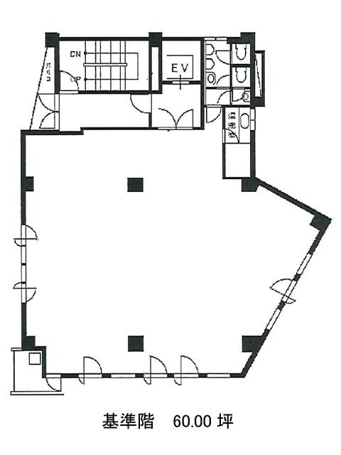
面積

60.00坪

賃料(共益費含)


入居日

募集終了

保証金

礼金

更新料

償却費

竣工

1979年1月

構造

SRC

規模

地上8階/地下1階

トイレ

男女別

空調

個別空調

エレベーター

セキュリティ

駐車場

耐震

旧耐震基準

基準階天井高

空室延床面積

83.88坪

最寄駅

情報更新日

2026/03/31

久保寺ビルのテナント募集中区画

階数 面積 賃料(共益費含む) 保証金 入居可能日 検討リスト 詳細
6 23.88坪 394,020円/月(16,500円/坪) 114万円
7 60.00坪 858,000円/月(14,300円/坪) 252万円
…新着物件

久保寺ビルのアクセス

久保寺ビルの物件情報

久保寺ビル(千代田区九段南)は市ヶ谷駅(A3番出口)から徒歩7分の賃貸オフィスです。
交差点に面した視認性の高い赤茶の建物。1階にはコンビニが入居しており、来客時の目印としても重宝するほか、従業員のちょっとした買い物やATM利用にも便利です。20坪台のコンパクト区画から100坪超えの広々空間まで、フロアによって多様な広さをラインナップ。事業フェーズや業種に合わせた柔軟な選択が可能です。設備面も充実しており、男女別トイレ・OAフロア・個別空調・機械警備を完備。敷地内に駐車場もあり、車移動の多い業種にも適しています。バランスの取れた機能性と利便性を備えたビルです。
久保寺ビルは市ヶ谷駅(A3番出口)の他に半蔵門駅(5番出口)徒歩9分、九段下駅(1番出口)徒歩10分で利用も可能です。

近隣のエリア・駅から探す