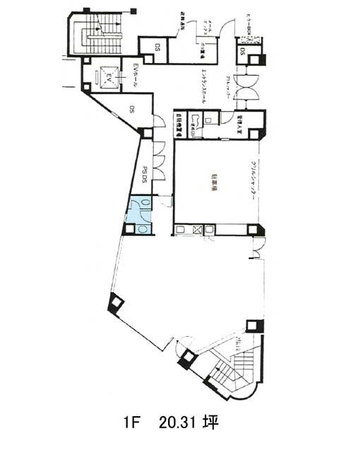
九段南ビルのテナント募集中区画
| 階数 | 面積 | 賃料(共益費含む) | 保証金 | 入居可能日 | 検討リスト | 詳細 |
|---|---|---|---|---|---|---|
| 5 | 54.23坪 | 応相談(応相談) | 応相談 | 即 |
…新着物件
九段南ビルのアクセス
九段南ビルの物件情報
九段南ビル(千代田区九段南)は九段下駅(1番出口)から徒歩7分の賃貸オフィスです。九段南ビルは九段下駅(1番出口)の他に市ヶ谷駅(A3番出口)徒歩9分、半蔵門駅(5番出口)徒歩11分で利用も可能です。

